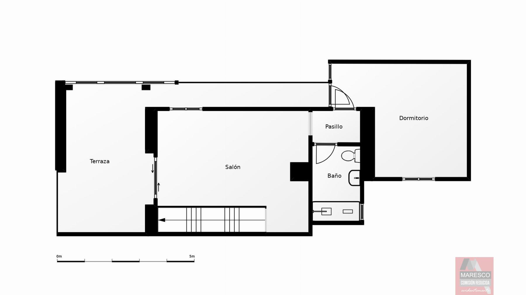
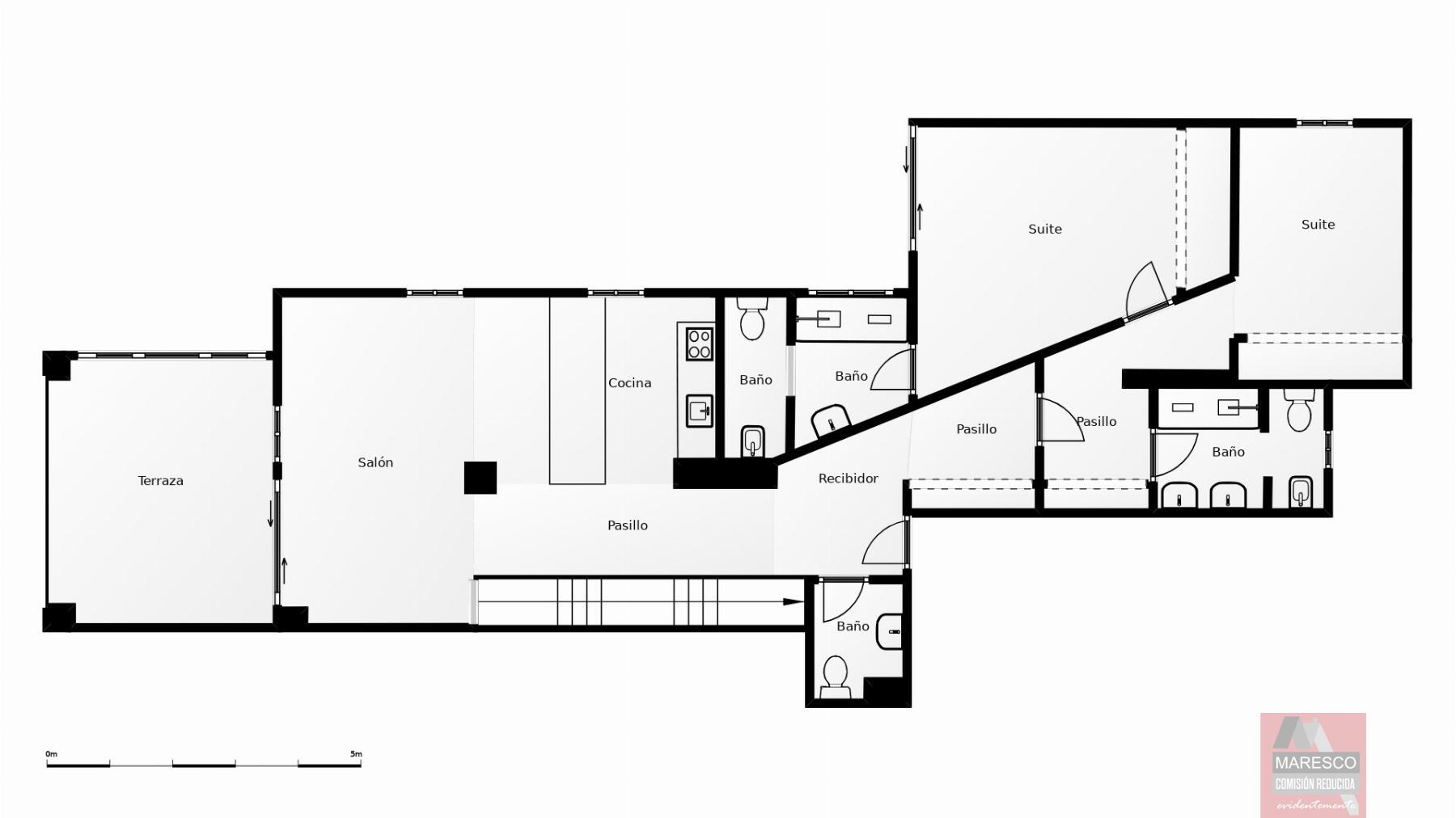
Ático dúplex en El Saladillo, con 224 m² construidos, 200 m² útiles, 3 dormitorios, 3 baños, 1 aseos, 1 garaje/s, reformado, exterior, planta 2, 5 armarios, 2 terraza(s), 15 m² de terraza, ascensor, orientación sur, portero, zonas verdes, piscina comunitaria, 3 plantas del edificio, última planta, gastos de comunidad/mes de 237 €, suelo de porcelánico, balcón
Impresionante dúplex en zona costera de Estepona, la vivienda esta recientemente reformado a estrenar, cuenta en su planta baja, con un amplio recibidor y aseo, amplísimo salón comedor con una cocina amueblada de diseño 45m², con isla y equipada. dos amplias suites , con armarios empotrados y baños completos con ducha. Amplia terraza a pie de salón. En la primera planta encontramos un segundo salón, con dormitorio en suite, mas terraza con vistas al mar. Este espacio, es fácilmente reformable a suite con vestidor.
El recinto cerrado, de estilo andaluz, cuenta con jardines, fuentes y piscinas comunitarias. Conserje. Fácilmente accesible por la A7, en pocos minutos se puede encontrar en Marbella, Estepona o san Pedro de Alcántara!.
